按冻干机的用途可以分成食品用冻干机、药品用冻干机、实验用冻干机等。
(1)食品用冻干机 图3-11该系列冷冻干燥设备是集热力、真空、制冷、压力容器制造和自动控制技术等领域所积累的经验基础上,消化吸收了国际上同类设备领先技术而研制的。它采用了内置式交替工作的水汽捕集器、满液式循环供冷系统、按加速升华理论设计的加热和水汽捕集系统以及负压蒸汽融冰等先进技术。

国产冻干设备中,只有ZDG160型冻干机给出了能耗指标:单位面积上最大热负荷1.5kW/㎡;单位脱水能耗:制冷系统1.2kW/kg,真空系统0.3kW/kg。
图3-12为大型冻干机的结构。该设备采用水蒸气喷射泵为真空抽气系统,可以直接抽出水蒸气。

1-物料盘;2-前级抽气机组;3-液压操作台;4-水蒸气喷射泵;5-门移动小车;6-门;7-加热板;8-门预紧装置;9-液压系统;10-干燥室;11-物料车
(2)医药用冻干机 医药用冷冻真空干燥必须符合GMP(Good Manufacturing Practice)的有关要求,其目的是要保证药品生产质量整批均匀一致,冻干设备还必须达到可以在线清洗(Cleaning in place,CIP)、在线灭菌(Sterilizing in place,SIP)的要求,其目的是保证药品清洁卫生,不染杂菌。对直接接触药品的设备材质和加工精度也有要求,一般要求采取304或316不锈钢;进入干燥系统的热空气须精密过滤,1m³空气中≥0.5μm的尘埃粒子不得超过3500个,活微生物数≤1;冻干箱内表面及搁板表面粗糙度Ra<0.75μm,冻干箱所有内角采用圆弧形,利于清洗,不准有死角积液,搁板表面平整度±1mm/m。药品冻干需要经过实验研究、中试生产、批量生产和大量生产几个过程。实验研究采用实验型冻干机,中试生产采用小型冻干机,批量生产从节能、省时等方面考虑,最好选用连续式生产的冻干机。冻干药品离不开冻干机,合理选用冻干机,可以在保证药品质量的前提下,达到即经济又实用的效果。
中国制药装备行业协会曾在2004年发布《冷冻真空干燥机》医药行业标准,并在2012年进行了修改。标准中规定:
①产品形式 冷凝器有立式或卧式,板层制冷应为间冷式,整机分手动和自动程序粒制,搁板分固定式或移动式,机内可用蒸汽灭菌或无灭菌装置,采用水冷冷却。
②基本参数 冻干箱内搁板总面积<12㎡,搁板间距<0.12m,搁板温度在-50~60℃范围内;冷凝器捕水能力≥10kg/㎡,空载最低温度≤-60℃。
③冻干机的工作条件 环境温度5~35℃,冷却水温度不高于20℃,相对湿度不大于80%,供电电源380V士5%或220V士10%,频率50Hz士2%,周围空气无导电尘埃及爆炸性气体和腐蚀性气体存在。
④灭菌系统工作条件 蒸汽表压力0.11MPa,温度121℃,保持20min。
⑤操作要求:a.空载运行时,搁板温度从室温降至一40℃时间不大于2h,冷凝器从室温降至-50℃时间不大于1.5h;搁板从-50℃升温至+60℃的时间不应大于3h,板层温差不超过士1.5℃;空载极限真空度高于5Pa;干燥箱内达到5Pa后,保压0.5h,静态漏气率不大于0.025Pa·m3/s。b.满载运行时,制品升华全过程中冷凝器温度≤一40℃,此时,干燥箱内的压力应≤30Pa。
⑥冻干机的其他要求 自动控制程序正确无误,准确执行设定的冻干曲线;自动加塞功能正常,不合格率≤0.3%;冻干机的水电、温度、真空度故障报警系统工作正常;冻干机安全可靠,绝缘电阻不小于1.0MΩ,电气设备必须经受频率为50Hz,正弦交流电压1500V,历时1min的耐压试验。
新标准还增加了保温材料的要求,无菌过滤器的要求,控制系统的权限设置,控制系统工艺参数的要求,在位清洗的要求,在位灭菌的要求和水汽捕集器的真空泄漏率。
生产型药用冻干机都有清洗系统(CIP)、消毒灭菌系统(SIP),其原理分别如图3-13和图3-14所示。

1-干燥室;2-冷凝器;3-干燥室与冷凝器间的阀门;4-液压制动系统;5-硅油回路;6-冷却系统;7-真空系统;8-冷却水;9-废水;10-排气真空泵;11-CP液体进口;12-CIP液体容器

1-干燥箱;2-冷凝器;3-干燥箱冷凝器阀门;4-液力加塞系统;5-硅油回路;6-冷却系统;7-真空系统;8-冷却水;9-废水;10-排气;11-蒸汽进口
图3-15中,表示一个带有机玻璃门的圆柱形干燥箱和一个对药瓶加塞的液压系统。

按生产方式可以分成间歇式、周期式、连续式。
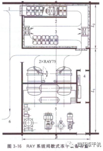
(1)间歇式冻干机 目前国内还很少有连续式冻干设备,仍然以周期(间歇)式为主,图3-16所示为丹麦生产的RAY系列间歇式冻干设备的布置情况,可作为间歇式冻干机整体设计时参考。

1-小车装料;2-冻结隧道;3-冻料贮存;4-控制室;5-机房;6-小车卸料
(2)连续式冻干机 为提高冻干产品的产量,节约能源,国外发展连续式冻干设备的速度快,医药和食品冻干领域都有应用。图3-17为隧道式连续冻干机,其结构简单,运转过程一目了然,难点是料车通过真空闸阀时容易产生振动,致使物料从料车上跌落,影响闸阀密封。

图3-18所示为一种连续生产的医药用冻干机,其冷凝器、制冷系统、真空系统安装在楼下机房内,其上一层楼是无菌室,分装料、进料和卸料室,冻干机内能自动压盖,实现无菌化、自动化生产,保证产品质量。

1-干燥室;2-观察窗;3-自动小门通道;4-全开大门;5-加塞装置;6-密封装置;7-加强筋和灭菌后的冷却水管;8-蝶阀;9-捕水器;10-加料装置;11-卸料装置;12-搁板
按捕水器安放的位置可以分为在冻干箱内还是箱外两种结构。
(1)捕水器按放在箱外 捕水器放在箱外的典型结构如图3-19所示。为提高产量,有时将两个冻干箱和两个捕水器共用一套制冷和真空系统。为提高可靠性,有时冻干箱和捕水器分用两套制冷系统和两套真空系统,各有优缺点。

1-无菌室墙壁;2-真空计;3-冻干箱;4-搁板;5-蝶阀;6-除霜水进口;7-电磁放气阀;8-真空泵;9-排水口;10-水汽凝结器;11-制冷系统,12-加热系统
(2)捕水器放在箱内 图3-20为一台拥有20㎡冻干面积,液态氨冷冻的冻干机。其干燥箱和冷凝器在同一个真空室里,用阀板隔开,为水蒸气流动提供了最短的路径,冷凝器温度可达-100℃,搁板温度在-70~+50℃之间,用运输车装卸料。

1-运输车;2-托盘中的产品;3-无菌室;4-GIP系统;5-水出口;6-液环泵;7-用液氨冷却的盐水热交换器;8-用20℃水冷却热交换液体的热交换器;9-电加热热交换液体的热交换器;10-热交换流体循环;11-液氨人口;12-氨气出口;13-除霜用的水;14-罗茨真空泵;15-3个二机泵组;16-干燥箱;17-冷凝器;18-冷凝器的金属板;19-干燥箱与冷凝器间的水力操作阀